Brunsbogatan 128 B
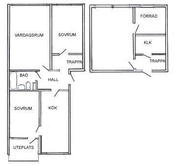
Lägenhet med uteplats i markplan.
Barnvänligt område med stora grönytor och renoverade lekplatser.
Parkering finns att hyra i mån av tillgång.
Kösystem till hyra av garageplats.
Lägenhet med uteplats i markplan.
Barnvänligt område med stora grönytor och renoverade lekplatser.
Parkering finns att hyra i mån av tillgång.
Kösystem till hyra av garageplats.