IntresseanmälanMina sidor

Daléngatan 13C

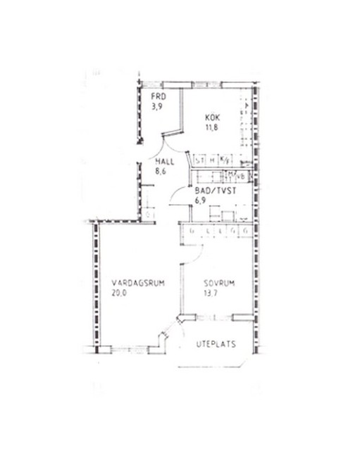
Fin 2,5:a med uteplats i markplan i mindre hyreshus.

Diskmaskin, tvättmaskin och torktumlare i lägenheten.

Kallhyra

Daléngatan 13C är en del av fastigheten Rörsoppen 19