IntresseanmälanMina sidor

Östergatan 7

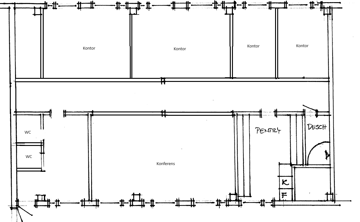
Centralt belägen kontorslokal – ca 149 kvm

Välkommen till en ljus och flexibel kontorslokal med utmärkt läge i centrum. Lokalen är ca 149 kvm och erbjuder en praktisk planlösning med:

  • 4–5 kontorsrum, där ett rum med fördel kan användas som konferensrum
  • Kök
  • Två toaletter
  • Goda möjligheter till anpassning efter behov

Lokalen passar utmärkt för företag som söker en representativ arbetsmiljö med närhet till kommunikationer, service och stadens puls.

Är du intresserad av lokalen?

Kontakta lidkoping@senate.se

Östergatan 7 är en del av fastigheten Kopparslagaren 8